基本情報ついて
さっそくですが、今回のリノベーションにかかった費用を公開させていただきます!
その前に、今回リノベーションするマンションの基本情報をお話しさせていただきます。
- 築29年(2025年現在)
- 3LDK (約79㎡)
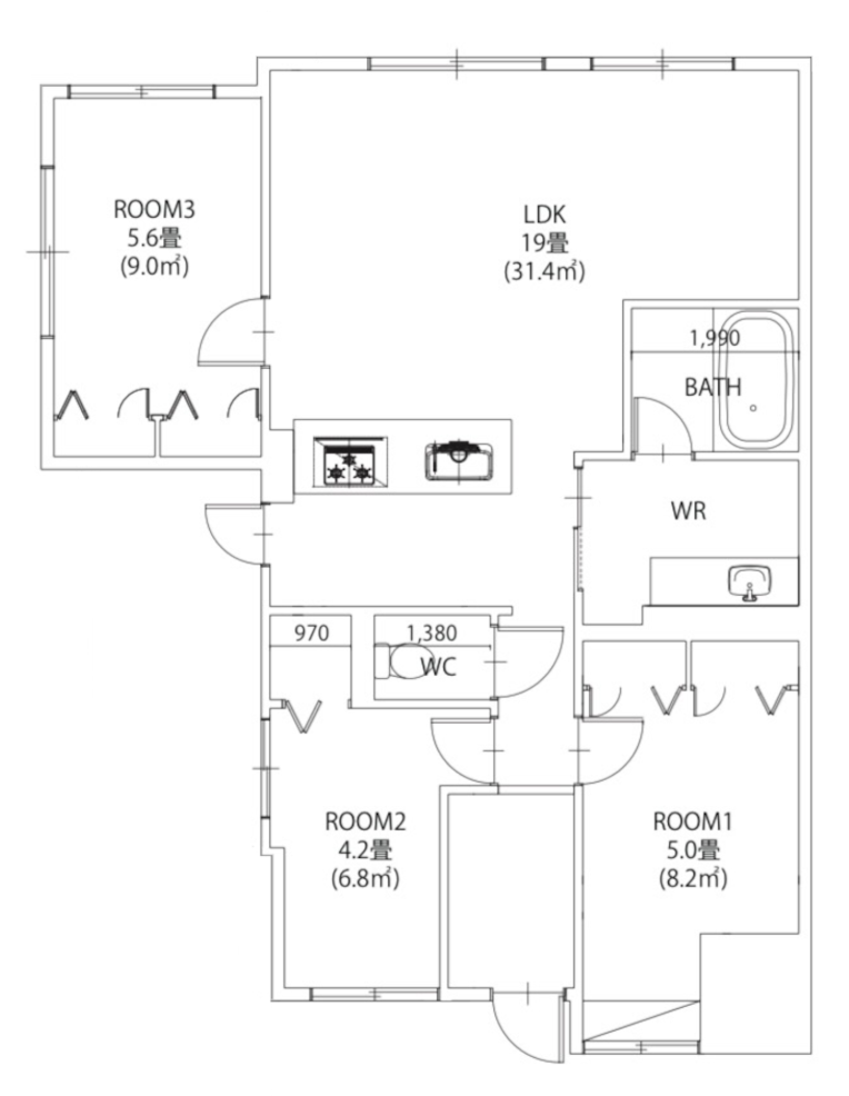
リノベーション前の間取りはこちら。

そしてリノベーション後の間取りがこちら。

図面を比較すると以下の通りです。
(工事業者様からいただいた図面のため、部屋の表記に一部違いがありますがご了承ください)

今回のリノベーションでは、間取りを一部変更しました。
- バスルームの拡張
元々狭かったため、隣接していたクローゼットを取り壊して浴室を広げました。 - 玄関の拡張
玄関が窮屈だったので、洋室1を一部削って玄関スペースを広げました。
さらに、キッチン・洗面台・バスルームをすべて入れ替える、大規模な工事となりました。
リノベーション費用内訳
- 現場経費 480,000円
- 玄関・廊下 448,300円
- 洋室左側(ROOM2) 331,540円
- 洋室右側(ROOM1) 447,670円
- トイレ 404,790円
- LDK 1,925,340円
- 浴室・洗面 1,528,090円
- 洋室奥左(ROOM3) 500,810円
- インプラス工事 748,000円
- その他・雑工事 50,000円
- 値引き調整 -965,449円
最終金額
- 小計(税抜) 5,899,091円
- 消費税(10%) 589,909円
- 合計(税込) 6,489,000円
- 値引後(税込) 6,000,000円
まとめ
正直、私はリノベーションについては素人なもので、この金額が「高いのか安いのか」もよく分からないのが現実です・・・。
ただ、リノベーションの業者様もすごく親切にしていただいているので、私としては納得しております。
細かい内容(キッチンや浴室など)は、別の記事で順番に紹介していこうと思います。
まずは全体の金額感を知りたい方の参考になれば嬉しいです!


コメント